Case Study: Building your dream home

Let's explore the intricacies of a new house development project.

Case Study: Building your dream home

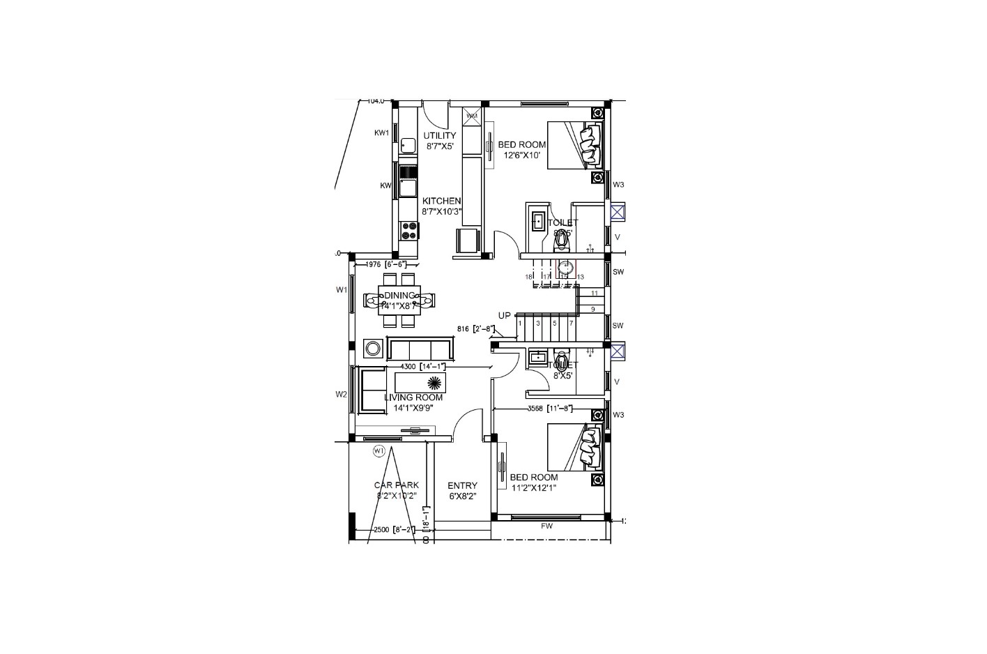
Imagine you’ve decided it’s time to settle down and build your dream home or book a villa in a community. You work with an architect to come up with room designs, general house layout, and more. The architect then comes up with alternatives usually in the form of an AutoCad design. Multiple options are presented and you are tasked with making some of the biggest decisions of your life while holding a single sheet of paper with some boxes and objects drawn as furniture across the layout.




If you need help visualizing your space better, we can help. We can quickly build 3D models and walkthroughs from the 2D plans you already have. What we provide is an app where you can walk through the rooms, look around, and get a general feel of the layout. You can either go for static 360-degree views or actually be the client walking through the layout at your own pace looking around. After all, any changes to the actual layout are better discussed and planned at this stage of the project. Once construction actually begins, time and cost of rework will likely be exorbitant.



Now that you have walked through the available options and your architect has refined the designs, we can provide iterative walkthroughs until you have a final design that you and your family are really happy with.

Once construction begins, unplanned items are likely to pop up, such as a prayer area to be incorporated within available space or a maid's toilet on the outside. Comunication gaps can lead to an unpleasant experience. We can help avoid such gaps by adding more layers on top of the original visualization and make this rework process a little easier.




Now that the general structure is complete, it’s time to tile the floors. The builder sends you different tile options to choose from for your rooms, bathroom tile options, kitchen back splash options, and more. This can be overwhelming when all you have is an email with a bunch of tile images and no real insight into how your selection will actually end up on the walls and floors. The app addresses this exact scenario, which allows you to try out different tile selections and visualize how they will look once done. The builder can hand this app out to all their project clients and have them play around with the different tile selections. No surprises for either parties!



Ah, that's not quite right. How about another one then. You can pick and choose any tile via the app and see it reflected in your view.



Below you can see one view of the app. We can list out all options that your builder has made available for you, or it can be a catalog of tile options from Kajaria, Somany or RAK to choose from.



Your house is almost ready but not quite there yet. Interior Design is the next big headache that can make or break everything. It is also the most fun part of the journey as the empty walls in your rooms get transformed with beautiful artistry work in the form of furniture, lights, wall hangings, colors, fixtures and so on. This stage of the house building project can also be overwhelming due to the many design choices available such as sofa, laminates, sliding door, wardrobes, folding beds, false ceiling, lighting and more. We excel at this stage and can provide you with a complete interactive walkthrough where you can choose all your furniture for your rooms and interact with most furniture such as opening wardrobe doors to see what it looks like on the inside or checking how the sliding door mechanism operates.





If you intend to get your furniture items built, you may want to work out the design with your carpenter, interactivity of its sub parts, its laminates, its interiors, etc. This can again be part of the app, which will sort of be a binding contract with your designer as far as its design and inner workings are concerned.





The interior of your house is complete and ready. Now it’s time to focus on the landscaping work to make the outdoors more beautiful. We can provide you visualizations with various options such as lawns or pebbles in your front yard, a vertical garden on your side walls, bamboo trees for privacy and a greener view by your windows, and more.





As time passes, maybe time to redecorate and refresh your room?





That's pretty much it. Our 3D visualizations will help you and your family feel more comfortable throughout the home setup process. We are here to assist you in multiple places throughout your dream project.

Enjoy your dream home!



And finally, there is more. Augmented Reality makes it easy to superimpose an object to be built on top of your existing layout. This is a quicker process where an entire existing environment need not be replicated in 3D, but only the new object needs to be built as 3D. Think of buying a new refrigerator that you need to fit in a limited space. Augmented Reality can help solve this problem.

Virtual Reality can take this many steps further, as there is no need of an app or using navigation buttons on your laptop. You just put on a headset and basically teleport yourself into a new virtual environment. So yea there are a lot of possibilities.



Finally, our 3D visualizations can be helpful not just for building a home, it can be useful in many other ways, including but not limited to the following:

  • Builders mapping out land and organizing individual plots and units
  • Big furniture stores working with clients on individual pieces of furniture or big projects
  • Home improvement stores
  • Rooftop designs like Solar installations, roof gardens, etc.
  • Landscape designers
  • Carpenters working on individual pieces of furniture or bulk orders
  • Exterior structure design, paint work, etc.
  • and many more...

An old house visualized as a modern commercial space:





Cricket Nets visualized adjacent to the Club House:


A cozy home visualized per user specifications based off a 2D floor plan.: